Home within the terraces, Natadol, Uttrakhand
29°28’28.1”n 79°43’56.9”e
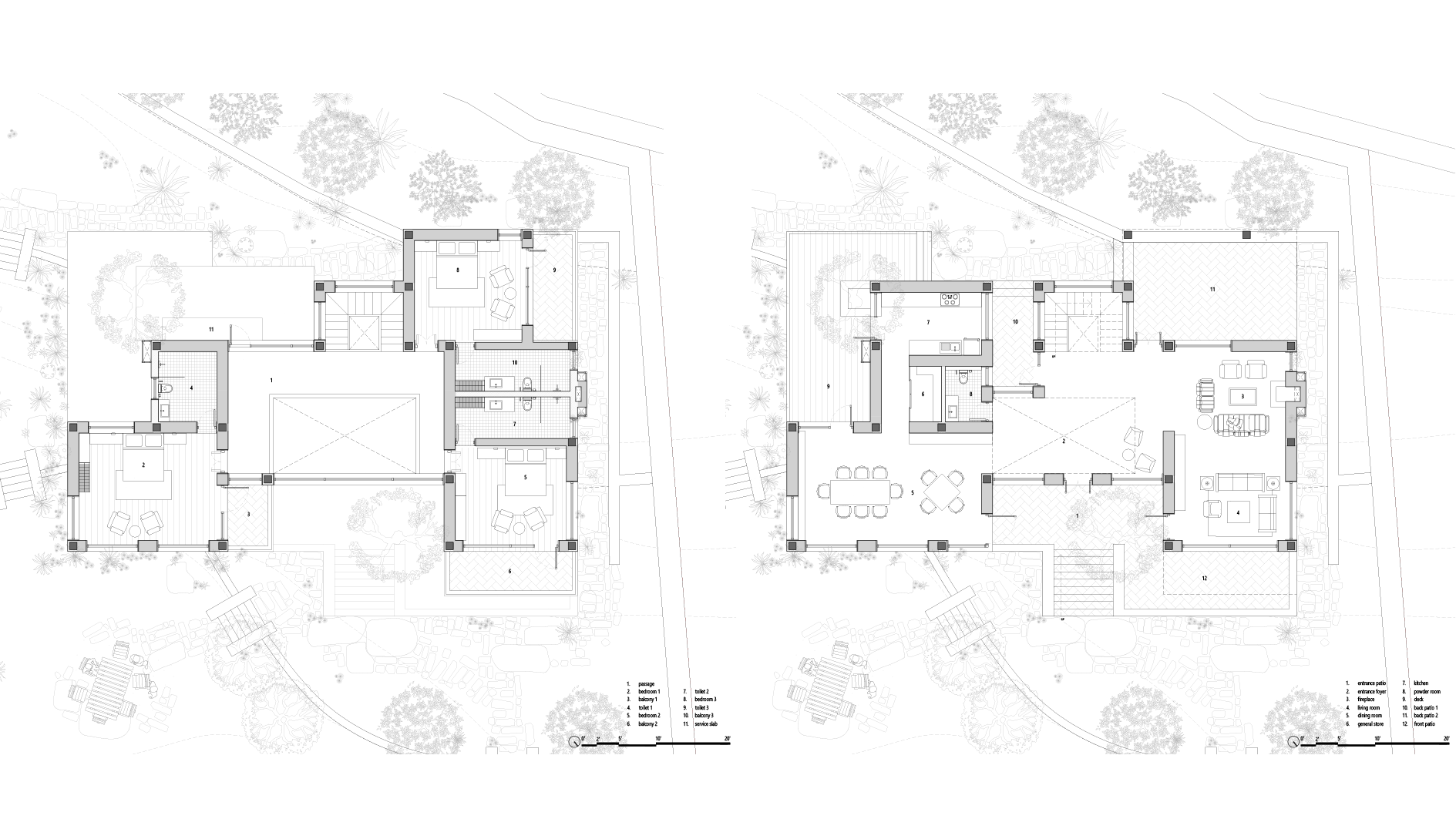
‘terraced tranquillity’ embodies a peaceful home nestled among flowing green terraces, providing sweeping views of the surrounding hills.
This home harmonises with the natural landscape, offering a peaceful retreat where every corner radiates calm and tranquillity, making it a sanctuary for relaxation and reflection. The house is a rustic refuge built from locally sourced stone and wood, seamlessly blending into the surroundings. The stone walls and timber beams will showcase timeless charm and durability, while large windows will invite the natural beauty of the outdoors inside. The home will provide a warm and welcoming haven where the scent of wood mingles with the earthy aroma of the surrounding hills, creating a truly harmonious retreat for every family member.
Site Area: 22132 sq feet Built-up Area: 4985 sq feet
Status: 2025 - ongoing Typology: Architecture – Residential

